Acton
71 ISLAND VIEW ROAD
Property Information
- Site
- Map 101, Lot 006
- Town
- Acton
- Tax Year
- 2025
- Owner
- CUNNINGHAM, MARILYN J
- Last Committed Tax
- $3,291.97
- Interactive Map
- Click Here to View
- Land Value
- $396,720
- Building Value
- $59,864
- Total Real Value
- $456,584
- Exemption Value
- $0
- Net Taxable Real Value
- $456,584
Owner Information
- Owner #1
- CUNNINGHAM, MARILYN J
- Owner #2
- CUNNINGHAM, JOSEPH
- Mailing Address
- 8536 EAST YELLOW LEG COURT
INVERNESS, FL 34450 - Trio Account #
- 587
- Book
- 14638
- Page
- 603
- Purchase Price
- $0
Land Information
| Land Group: Type | Size | Value |
|---|---|---|
| Primary Lot: Balch Lake | 204 FF | $258,300 |
| Primary Lot: Table 6 | 0.48 AC | $120,420 |
| 0.48 Ac | $378,720 |
Site Improvement
Improvements made to the property such as a well, septic system or driveway.
| Description | SI Value |
|---|---|
| SI Grade 2 | $18,000 |
| $18,000 |
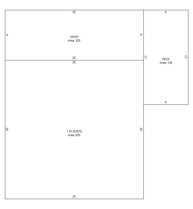
Building Data
| Building Type | Area | Grade | Cond | F.Obs. | E.Obs. | Value | Color | Year |
|---|---|---|---|---|---|---|---|---|
| 1-Story House | 625 | 2.75 | 70% | 100% | 100% | $51,342 | NAT | |
| OP/OP | 225 | 2.75 | 70% | 100% | 100% | $6,865 | ||
| Deck | 136 | 2.75 | 70% | 100% | 100% | $1,409 | ||
| Platform | 48 | 2.75 | 70% | 100% | 100% | $248 |
Visit History
| Date | Purpose | Result | Individual |
|---|---|---|---|
| 09/01/2022 | Equalization | Measure | Brandon Polisky |
| 06/02/2011 | Equalization | Callback | Roland Dumont |
| 09/22/2010 | Equalization | Measure | Roland Dumont |
Exemptions
| Type | Value |
|---|---|
| No exemptions listed for this property. | |
Town Information
- Tax Rate
- 0.007210
- Tax Due Dates
- 10/15/2025
04/15/2026 - Commitment Date
- 08/13/2025
- Certified Ratio
- 1.00
- Address
- 35 H Road
Acton, ME 04001 - Phone
- 207 636 3131
- Fax
- 207 636 4526
- Tax Collector
- Jennifer Roux
- Treasurer
- Lauren Hazekamp
Tax Maps
For Download
- Acton 2025 101
- Acton 2025 102
- Acton 2025 103
- Acton 2025 104
- Acton 2025 105
- Acton 2025 106
- Acton 2025 107
- Acton 2025 108
- Acton 2025 109
- Acton 2025 110
- Acton 2025 111
- Acton 2025 112
- Acton 2025 113
- Acton 2025 114
- Acton 2025 115
- Acton 2025 116
- Acton 2025 117
- Acton 2025 118
- Acton 2025 119
- Acton 2025 120
- Acton 2025 121
- Acton 2025 122
- Acton 2025 123
- Acton 2025 124
- Acton 2025 125
- Acton 2025 126
- Acton 2025 127
- Acton 2025 128
- Acton 2025 129
- Acton 2025 130
- Acton 2025 131
- Acton 2025 132
- Acton 2025 133
- Acton 2025 134
- Acton 2025 135
- Acton 2025 136
- Acton 2025 137
- Acton 2025 138
- Acton 2025 139
- Acton 2025 140
- Acton 2025 141
- Acton 2025 142
- Acton 2025 143
- Acton 2025 144
- Acton 2025 145
- Acton 2025 146
- Acton 2025 147
- Acton 2025 148
- Acton 2025 149
- Acton 2025 150
- Acton 2025 151
- Acton 2025 152
- Acton 2025 153
- Acton 2025 154
- Acton 2025 201
- Acton 2025 202
- Acton 2025 203
- Acton 2025 204
- Acton 2025 205
- Acton 2025 206
- Acton 2025 207
- Acton 2025 208
- Acton 2025 209
- Acton 2025 210
- Acton 2025 211
- Acton 2025 212
- Acton 2025 213
- Acton 2025 214
- Acton 2025 215
- Acton 2025 216
- Acton 2025 217
- Acton 2025 218
- Acton 2025 219
- Acton 2025 220
- Acton 2025 221
- Acton 2025 222
- Acton 2025 223
- Acton 2025 224
- Acton 2025 225
- Acton 2025 226
- Acton 2025 227
- Acton 2025 228
- Acton 2025 229
- Acton 2025 230
- Acton 2025 231
- Acton 2025 232
- Acton 2025 233
- Acton 2025 234
- Acton 2025 235
- Acton 2025 236
- Acton 2025 237
- Acton 2025 238
- Acton 2025 239
- Acton 2025 240
- Acton 2025 241
- Acton 2025 242
- Acton 2025 243
- Acton 2025 244
- Acton 2025 245
- Acton 2025 246
- Acton 2025 247
- Acton 2025 248
- Acton 2025 249
- Acton 2025 250
- Acton 2025 251
- Acton 2025 252
- Acton 2025 253
- Acton 2025 254
- Acton 2025 255
- Acton 2025 256
- Acton 2025 257
- Acton 2025 258
- Acton 2025 259
- Acton 2025 260
- Acton 2025 261
- Acton 2025 262
- Acton 2025 263
- Acton 2025 264
- Acton 2025 Cover
- Acton 2025 Index
