Boothbay
426 BARTERS ISLAND RD
Property Information
- Site
- Map R01, Lot 013
- Town
- Boothbay
- Tax Year
- 2025
- Owner
- PIERCE, LYNDA
- Last Committed Tax
- $1,953.12
- Land Value
- $80,116
- Building Value
- $81,299
- Total Real Value
- $161,415
- Exemption Value
- $0
- Net Taxable Real Value
- $161,415
Owner Information
- Owner #1
- PIERCE, LYNDA
- Mailing Address
- 227 VINAL STREET
ROCKPORT, ME 04856 - Trio Account #
- 1756
- Owner Since
- 11/29/2012
- Book
- 4600
- Page
- 149
- Purchase Price
- $0
Land Information
| Land Group: Type | Size | Value |
|---|---|---|
| Primary Lot: Table 05 | 0.45 Ac | $64,116 |
| 0.45 Ac | $64,116 |
Site Improvement
Improvements made to the property such as a well, septic system or driveway.
| Description | SI Value |
|---|---|
| Grade 3 | $16,000 |
| $16,000 |
Building Data
| Building Type | Area | Grade | Cond | F.Obs. | E.Obs. | Value | Color | Year |
|---|---|---|---|---|---|---|---|---|
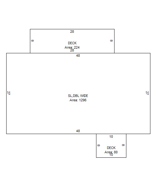
| Double Wide | 1296 | 3.25 | 85% | 85% | 100% | $58,043 | GRY | 1999 |
| Garage 2s | 728 | 3.25 | 85% | 100% | 100% | $22,207 | 2005 | |
| Shed | 144 | 2.75 | 75% | 100% | 100% | $1,049 | 2005 |
Visit History
| Date | Purpose | Result | Individual |
|---|---|---|---|
| 11/30/2017 | Equalization | Measure | Matthew Berube |
| 09/15/2005 | MLA | ||
| 09/09/2005 | EB | ||
| 05/18/2005 | EB | ||
| 10/28/2004 | MO | ||
| 10/28/2004 | MO |
Exemptions
| Type | Value |
|---|---|
| No exemptions listed for this property. | |
Town Information
- Tax Rate
- 0.012100
- Tax Due Dates
- 08/15/2025
02/13/2026 - Commitment Date
- 07/10/2025
- Certified Ratio
- 0.63
- Address
- PO Box 106, 7 Corey Lane
Boothbay, ME 04537 - Phone
- 207-633-2051
- Fax
- 207-633-6620
- Tax Collector
- Daniel G. Bryer, Jr.
- Treasurer
- Daniel G. Bryer, Jr.
Tax Maps
For Download
- Boothbay2025-Cover
- Boothbay2025-Index
- Boothbay2025-R01
- Boothbay2025-R02
- Boothbay2025-R03
- Boothbay2025-R04
- Boothbay2025-R05
- Boothbay2025-R06
- Boothbay2025-R07
- Boothbay2025-R08
- Boothbay2025-R09
- Boothbay2025-R10
- Boothbay2025-R11
- Boothbay2025-U01
- Boothbay2025-U02
- Boothbay2025-U03
- Boothbay2025-U04
- Boothbay2025-U05
- Boothbay2025-U06
- Boothbay2025-U07
- Boothbay2025-U08
- Boothbay2025-U09
- Boothbay2025-U10
- Boothbay2025-U11
- Boothbay2025-U12
- Boothbay2025-U13
- Boothbay2025-U14
- Boothbay2025-U15
- Boothbay2025-U16
- Boothbay2025-U17
- Boothbay2025-U18
- Boothbay2025-U19
