Boothbay
448 BARTERS ISLAND RD
Property Information
- Site
- Map R01, Lot 019
- Town
- Boothbay
- Tax Year
- 2025
- Owner
- LEWIS, FREDRIC I
- Last Committed Tax
- $2,992.44
- Land Value
- $123,420
- Building Value
- $139,639
- Total Real Value
- $263,059
- Exemption Value
- $15,750
- Net Taxable Real Value
- $247,309
Owner Information
- Owner #1
- LEWIS, FREDRIC I
- Mailing Address
- 448 BARTERS ISLAND ROAD
TREVETT, ME 04571 - Trio Account #
- 1729
- Book
- 2444
- Page
- 250
- Purchase Price
- $0
Land Information
| Land Group: Type | Size | Value |
|---|---|---|
| Primary Lot: Table 05 | 1 Ac | $78,000 |
| Primary Lot: Additional 05 | 5.15 Ac | $29,420 |
| 6.15 Ac | $107,420 |
Site Improvement
Improvements made to the property such as a well, septic system or driveway.
| Description | SI Value |
|---|---|
| Grade 3 | $16,000 |
| $16,000 |
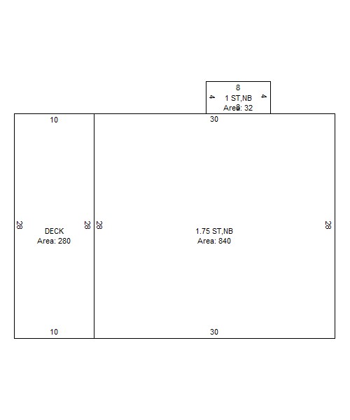
Building Data
| Building Type | Area | Grade | Cond | F.Obs. | E.Obs. | Value | Color | Year |
|---|---|---|---|---|---|---|---|---|
| 1¾-Story House | 840 | 3.00 | 70% | 90% | 100% | $73,505 | GRY | 1985 |
| 1-Story | 32 | 3.00 | 70% | 90% | 100% | $1,169 | ||
| Deck | 280 | 3.00 | 70% | 90% | 100% | $2,117 | ||
| 1-St/Gar | 1296 | 3.25 | 75% | 90% | 100% | $59,935 | ||
| Shed | 384 | 3.00 | 85% | 85% | 100% | $2,913 |
Visit History
| Date | Purpose | Result | Individual |
|---|---|---|---|
| 05/20/2025 | Review | Refused | Brandon Polisky |
| 04/11/2022 | Callback | No Change | Matthew Berube |
| 04/15/2021 | Building Permit | See 2022 | Brandon Polisky |
| 11/30/2017 | Equalization | Measure | Matthew Berube |
| 04/30/2013 | Roland Dumont | ||
| 05/18/2005 | EB | ||
| 10/28/2004 | MO |
Exemptions
| Type | Value |
|---|---|
| Homestead | $15,750 |
Town Information
- Tax Rate
- 0.012100
- Tax Due Dates
- 08/15/2025
02/13/2026 - Commitment Date
- 07/10/2025
- Certified Ratio
- 0.63
- Address
- PO Box 106, 7 Corey Lane
Boothbay, ME 04537 - Phone
- 207-633-2051
- Fax
- 207-633-6620
- Tax Collector
- Daniel G. Bryer, Jr.
- Treasurer
- Daniel G. Bryer, Jr.
Tax Maps
For Download
- Boothbay2025-Cover
- Boothbay2025-Index
- Boothbay2025-R01
- Boothbay2025-R02
- Boothbay2025-R03
- Boothbay2025-R04
- Boothbay2025-R05
- Boothbay2025-R06
- Boothbay2025-R07
- Boothbay2025-R08
- Boothbay2025-R09
- Boothbay2025-R10
- Boothbay2025-R11
- Boothbay2025-U01
- Boothbay2025-U02
- Boothbay2025-U03
- Boothbay2025-U04
- Boothbay2025-U05
- Boothbay2025-U06
- Boothbay2025-U07
- Boothbay2025-U08
- Boothbay2025-U09
- Boothbay2025-U10
- Boothbay2025-U11
- Boothbay2025-U12
- Boothbay2025-U13
- Boothbay2025-U14
- Boothbay2025-U15
- Boothbay2025-U16
- Boothbay2025-U17
- Boothbay2025-U18
- Boothbay2025-U19
