Canton
6 BLACK FLY ALLEY
Property Information
- Site
- Map R01, Lot 02
- Town
- Canton
- Tax Year
- 2025
- Owner
- DAILEY, CHRIS D
- Last Committed Tax
- $4,055.44
- Includes
- R01-004
- Land Value
- $29,960
- Building Value
- $174,007
- Total Real Value
- $203,967
- Exemption Value
- $21,700
- Net Taxable Real Value
- $182,267
Owner Information
- Owner #1
- DAILEY, CHRIS D
- Mailing Address
- PO BOX 321
CANTON, ME 04221 - Trio Account #
- 153
- Owner Since
- 04/11/2019
- Book
- 5363
- Page
- 596
- Purchase Price
- $1,201
Land Information
| Land Group: Type | Size | Value |
|---|---|---|
| Primary Lot: Table 2 | 1 AC | $14,000 |
| Primary Lot: Additional 2 | 4.96 AC | $4,960 |
| 5.96 Ac | $18,960 |
Site Improvement
Improvements made to the property such as a well, septic system or driveway.
| Description | SI Value |
|---|---|
| SI Grade 3 | $11,000 |
| $11,000 |
Building Data
| Building Type | Area | Grade | Cond | F.Obs. | E.Obs. | Value | Color | Year |
|---|---|---|---|---|---|---|---|---|
| Shed | 1000 | 4.00 | 90% | 100% | 100% | $12,285 | 2012 | |
| Shed | 3000 | 4.00 | 90% | 100% | 100% | $36,855 | 2012 | |
| Shed | 2000 | 4.00 | 90% | 100% | 100% | $24,570 | 2012 | |
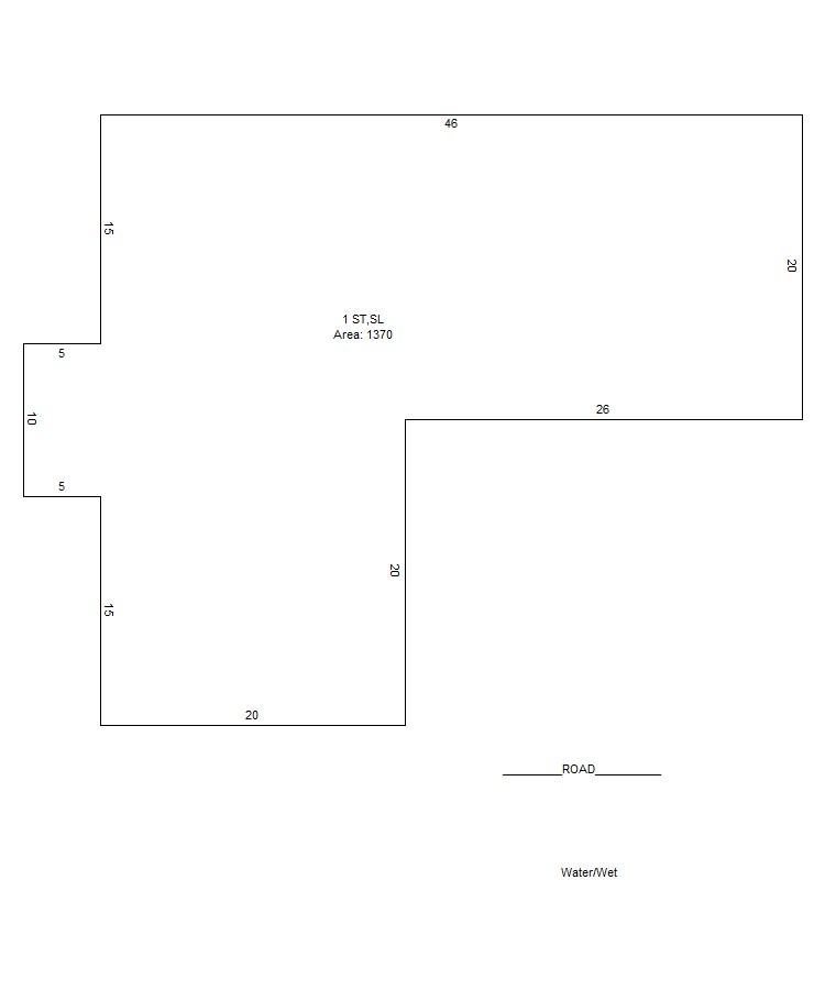
| 1-Story Frame | 1370 | 3.50 | 100% | 70% | 100% | $100,297 | WHT |
Visit History
| Date | Purpose | Result | Individual |
|---|---|---|---|
| 06/27/2024 | Callback | No Change | Richard Grondin |
| 08/09/2023 | Callback | See 2024 | Richard Grondin |
Exemptions
| Type | Value |
|---|---|
| Homestead | $17,500 |
| Veteran (Maine) | $4,200 |
Town Information
- Tax Rate
- 0.022250
- Tax Due Dates
- 11/05/2025
05/06/2026 - Commitment Date
- 09/25/2025
- Certified Ratio
- 0.70
- Address
- 94 Turner Street
Canton, ME 04221 - Phone
- 207 597 2920
- Fax
- 207 597 2940
- Tax Collector
- Katherine Walker
- Treasurer
- Aaron Lashua
Tax Maps
For Download
- Canton 2025 Cover
- Canton 2025 Index
- Canton 2025 Overall
- Canton 2025 R01
- Canton 2025 R02
- Canton 2025 R03
- Canton 2025 R04
- Canton 2025 R05
- Canton 2025 R06
- Canton 2025 R07
- Canton 2025 R08
- Canton 2025 R09
- Canton 2025 R10
- Canton 2025 U01
- Canton 2025 U02
- Canton 2025 U03
- Canton 2025 U04
- Canton 2025 U05
- Canton 2025 U06
- Canton 2025 U07
- Canton 2025 U08
- Canton 2025 U09
- Canton 2025 U10
- Canton 2025 U11
