Canton
8 HODGE ROAD
Property Information
- Site
- Map R01, Lot 05
- Town
- Canton
- Tax Year
- 2025
- Owner
- DAILEY, CHRIS D
- Last Committed Tax
- $1,599.35
- Land Value
- $21,000
- Building Value
- $50,881
- Total Real Value
- $71,881
- Exemption Value
- $0
- Net Taxable Real Value
- $71,881
Owner Information
- Owner #1
- DAILEY, CHRIS D
- Mailing Address
- PO BOX 321
CANTON, ME 04221 - Trio Account #
- 162
- Book
- 2202
- Page
- 226
- Purchase Price
- $0
Documents:
Land Information
| Land Group: Type | Size | Value |
|---|---|---|
| Primary Lot: Table 2 | 1 AC | $14,000 |
| 1.00 Ac | $14,000 |
Site Improvement
Improvements made to the property such as a well, septic system or driveway.
| Description | SI Value |
|---|---|
| SI Grade 2 | $7,000 |
| $7,000 |
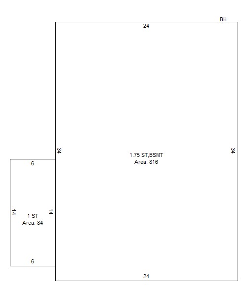
Building Data
| Building Type | Area | Grade | Cond | F.Obs. | E.Obs. | Value | Color | Year |
|---|---|---|---|---|---|---|---|---|
| 1¾-Story Frame | 816 | 2.50 | 75% | 85% | 100% | $48,172 | YLO | |
| Shed | 0 | 3.00 | 100% | 100% | 100% | $500 | ||
| 1-Story | 84 | 2.50 | 75% | 85% | 100% | $2,209 |
Visit History
| Date | Purpose | Result | Individual |
|---|---|---|---|
| 05/06/2020 | Mapping | Reprice | Paul Binette |
| 03/28/2019 | Equalization | Measure & List | Matthew Berube |
| 05/30/2017 | Callback | See 2018 | Tristan Binette |
| 07/08/2015 | Callback | Reprice | Paul Binette |
| 01/22/2005 | Equalization | Measure & List | Paul Binette |
Exemptions
| Type | Value |
|---|---|
| No exemptions listed for this property. | |
Town Information
- Tax Rate
- 0.022250
- Tax Due Dates
- 11/05/2025
05/06/2026 - Commitment Date
- 09/25/2025
- Certified Ratio
- 0.70
- Address
- 94 Turner Street
Canton, ME 04221 - Phone
- 207 597 2920
- Fax
- 207 597 2940
- Tax Collector
- Katherine Walker
- Treasurer
- Aaron Lashua
Tax Maps
For Download
- Canton 2025 Cover
- Canton 2025 Index
- Canton 2025 Overall
- Canton 2025 R01
- Canton 2025 R02
- Canton 2025 R03
- Canton 2025 R04
- Canton 2025 R05
- Canton 2025 R06
- Canton 2025 R07
- Canton 2025 R08
- Canton 2025 R09
- Canton 2025 R10
- Canton 2025 U01
- Canton 2025 U02
- Canton 2025 U03
- Canton 2025 U04
- Canton 2025 U05
- Canton 2025 U06
- Canton 2025 U07
- Canton 2025 U08
- Canton 2025 U09
- Canton 2025 U10
- Canton 2025 U11
