Livermore Falls
282 STRICKLAND LP RD
Property Information
- Site
- Map 001, Lot 012
- Town
- Livermore FallsReval 2025
- Tax Year
- 2025
- Owner
- VEILLEUX, CINDY
- Last Committed Tax
- $1,531.37
- Land Value
- $41,480
- Building Value
- $104,100
- Total Real Value
- $145,580
- Exemption Value
- $25,000
- Net Taxable Real Value
- $120,580
Owner Information
- Owner #1
- VEILLEUX, CINDY
- Mailing Address
- 282 STRICKLAND LOOP RD
LIVERMORE FALLS, ME 04254 - Trio Account #
- 1535
- Book
- 2806
- Page
- 142
- Purchase Price
- $0
Land Information
| Land Group: Type | Size | Value |
|---|---|---|
| Primary Lot: Table 2 | 1 Ac | $24,500 |
| Primary Lot: Additional 2 | 0.4 Ac | $980 |
| 1.40 Ac | $25,480 |
Site Improvement
Improvements made to the property such as a well, septic system or driveway.
| Description | SI Value |
|---|---|
| Site Improvements 2 | $16,000 |
| $16,000 |
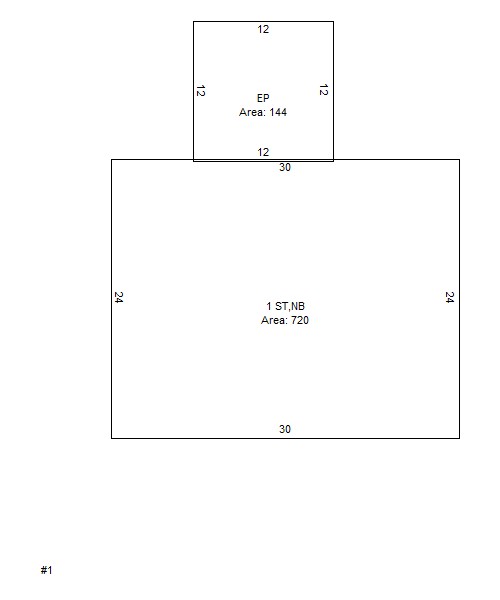
Building Data
| Building Type | Area | Grade | Cond | F.Obs. | E.Obs. | Value | Color | Year |
|---|---|---|---|---|---|---|---|---|
| 1-Story Frame | 720 | 3.25 | 80% | 100% | 100% | $96,455 | ||
| Open Porch (OP) | 144 | 3.25 | 80% | 100% | 100% | $3,618 | ||
| Shed | 336 | 3.25 | 80% | 100% | 100% | $4,026 |
Visit History
| Date | Purpose | Result | Individual |
|---|---|---|---|
| 08/12/2025 | Equalization | Reval Review | Matthew Berube |
| 08/21/2024 | Equalization | Measure | Jeff Kendall |
Exemptions
| Type | Value |
|---|---|
| Homestead | $25,000 |
Town Information
- Tax Rate
- 0.012700
- Tax Due Dates
- 10/23/2025
03/19/2026 - Commitment Date
- 09/09/2025
- Certified Ratio
- 1.00
- Address
- 2 Main Street
Livermore Falls, ME 04254 - Phone
- 207-897-3321
- Tax Collector
- Doris Austin
- Treasurer
- Rebecca Harmatys
Tax Maps
For Download
- Livermore Falls 2025 001
- Livermore Falls 2025 002
- Livermore Falls 2025 003
- Livermore Falls 2025 004
- Livermore Falls 2025 005
- Livermore Falls 2025 006
- Livermore Falls 2025 007
- Livermore Falls 2025 008
- Livermore Falls 2025 009
- Livermore Falls 2025 010
- Livermore Falls 2025 011
- Livermore Falls 2025 012
- Livermore Falls 2025 013
- Livermore Falls 2025 014
- Livermore Falls 2025 015
- Livermore Falls 2025 016
- Livermore Falls 2025 017
- Livermore Falls 2025 018
- Livermore Falls 2025 019
- Livermore Falls 2025 020
- Livermore Falls 2025 021
- Livermore Falls 2025 022
- Livermore Falls 2025 023
- Livermore Falls 2025 024
- Livermore Falls 2025 Cover
- Livermore Falls 2025 Index
