Livermore
520 BOOTHBY ROAD
Property Information
- Site
- Map R01, Lot 002
- Town
- Livermore
- Tax Year
- 2025
- Owner
- DAMON RICHARD
- Last Committed Tax
- $2,022.41
- Land Value
- $31,075
- Building Value
- $75,931
- Total Real Value
- $107,006
- Exemption Value
- $0
- Net Taxable Real Value
- $107,006
Owner Information
- Owner #1
- DAMON RICHARD
- Mailing Address
- P O BOX 503
LIVERMORE, ME 04253 - Trio Account #
- 1368
- Owner Since
- 08/24/2010
- Book
- 6796
- Page
- 120
- Purchase Price
- $45,000
Land Information
| Land Group: Type | Size | Value |
|---|---|---|
| Primary Lot: Table 2 | 1 AC | $14,400 |
| Primary Lot: Additional 2 | 0.5 AC | $675 |
| 1.50 Ac | $15,075 |
Site Improvement
Improvements made to the property such as a well, septic system or driveway.
| Description | SI Value |
|---|---|
| SI Grade 3 | $16,000 |
| $16,000 |
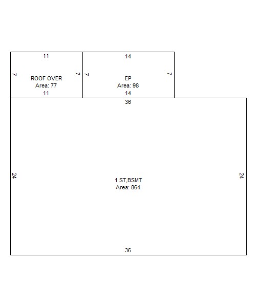
Building Data
| Building Type | Area | Grade | Cond | F.Obs. | E.Obs. | Value | Color | Year |
|---|---|---|---|---|---|---|---|---|
| 1-Story Frame | 864 | 3.25 | 75% | 100% | 100% | $71,762 | ||
| Enclosed Porch (EP) | 98 | 3.25 | 75% | 100% | 100% | $2,845 | BLU | |
| Lean-to/Roof-over | 77 | 3.25 | 75% | 100% | 100% | $248 | ||
| Shed | 120 | 2.75 | 75% | 100% | 100% | $1,076 |
Visit History
| Date | Purpose | Result | Individual |
|---|---|---|---|
| 01/08/2020 | Equalization | Measure | Tristan Binette |
| 09/04/2003 | Equalization | Measure & List | Sally Mitchell |
Exemptions
| Type | Value |
|---|---|
| No exemptions listed for this property. | |
Town Information
- Tax Rate
- 0.018900
- Tax Due Dates
- 11/17/2025
04/15/2026 - Commitment Date
- 08/26/2025
- Certified Ratio
- 0.70
- Address
- 10 Crash Road
Livermore, ME 04253 - Phone
- 207-897-3207
- Fax
- 207-897-9581
- Tax Collector
- Amanda Tyler
- Treasurer
- Mary Castonguay
Tax Maps
For Download
- Livermore 2025 Cover
- Livermore 2025 Index
- Livermore 2025 Overall
- Livermore 2025 R01
- Livermore 2025 R02
- Livermore 2025 R03
- Livermore 2025 R04
- Livermore 2025 R05
- Livermore 2025 R06
- Livermore 2025 R07
- Livermore 2025 R08
- Livermore 2025 R09
- Livermore 2025 R10
- Livermore 2025 R11
- Livermore 2025 R12
- Livermore 2025 R13
- Livermore 2025 R14
- Livermore 2025 U01
- Livermore 2025 U02
- Livermore 2025 U03
- Livermore 2025 U04
- Livermore 2025 U05
- Livermore 2025 U06
- Livermore 2025 U07
- Livermore 2025 U08
- Livermore 2025 U09
- Livermore 2025 U10
- Livermore 2025 U11
- Livermore 2025 U12
- Livermore 2025 U13
- Livermore 2025 U14
- Livermore 2025 U15
- Livermore 2025 U16
- Livermore 2025 U17
- Livermore 2025 U18
- Livermore 2025 U19
- Livermore 2025 U20
- Livermore 2025 U21
- Livermore 2025 U22
- Livermore 2025 U23
- Livermore 2025 U24
- Livermore 2025 U25
- Livermore 2025 U26
- Livermore 2025 U27
- Livermore 2025 U28
