Livermore
Property Information
- Site
- Map R01, Lot 004
- Town
- Livermore
- Tax Year
- 2025
- Owner
- MAILHOT JOSEPH
- Last Committed Tax
- $4,901.02
- Land Value
- $48,486
- Building Value
- $210,827
- Total Real Value
- $259,313
- Exemption Value
- $0
- Net Taxable Real Value
- $259,313
Owner Information
- Owner #1
- MAILHOT JOSEPH
- Owner #2
- MAILHOT SCHARA
- Mailing Address
- 556 boothby road
livermore, ME 04253 - Trio Account #
- 272
- Owner Since
- 06/03/2015
- Purchase Price
- $44,000
Land Information
| Land Group: Type | Size | Value |
|---|---|---|
| Farm Acreage: Mixed Wood Farm | 9 AC | $2,860 |
| Farm Acreage: Hard Wood Farm | 30 AC | $8,001 |
| Primary Lot: Wet/Wasteland | 3 AC | $225 |
| Primary Lot: Table 2 | 1 AC | $16,000 |
| Primary Lot: Additional 2 | 1 AC | $1,500 |
| Farm Acreage: Pasture | 12 AC | $3,900 |
| 56.00 Ac | $32,486 |
- Tree Growth: Year 1st Classified
- 1980
- Tree Growth: Management Plan Date
- 06/28/2015
- Farmland: Date Classified
- 04/01/2022
Site Improvement
Improvements made to the property such as a well, septic system or driveway.
| Description | SI Value |
|---|---|
| SI Grade 3 | $16,000 |
| $16,000 |
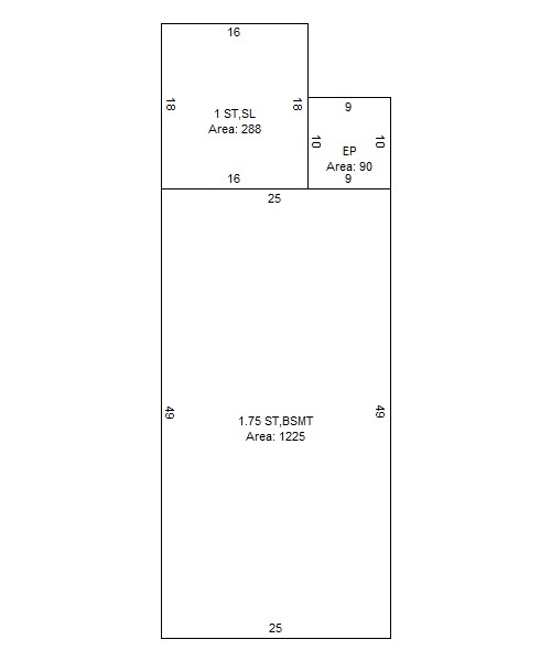
Building Data
| Building Type | Area | Grade | Cond | F.Obs. | E.Obs. | Value | Color | Year |
|---|---|---|---|---|---|---|---|---|
| 1¾-Story Frame | 1225 | 4.00 | 97% | 100% | 100% | $185,677 | 2021 | |
| 1-Story | 288 | 4.00 | 97% | 100% | 100% | $21,064 | ||
| Enclosed Porch (EP) | 90 | 4.00 | 97% | 100% | 100% | $4,086 |
Visit History
| Date | Purpose | Result | Individual |
|---|---|---|---|
| 05/22/2024 | Callback | No Change | Matthew Berube |
| 02/27/2023 | Callback | See 2024 | Jeff Kendall |
| 07/14/2022 | Callback | See 2023 | Brandon Polisky |
| 06/10/2021 | Callback | See 2022 | Jeff Kendall |
| 05/06/2020 | Callback | See 2021 | Dana Berube |
| 03/19/2020 | Equalization | Measure | Matthew Berube |
| 06/18/2019 | Callback | See 2020 | Dana Berube |
| 03/07/2018 | Callback | See 2019 | Tristan Binette |
| 03/09/2017 | Building Permit | See 2018 | Matthew Berube |
| 09/04/2003 | Equalization | Vacant | Sally Mitchell |
Exemptions
| Type | Value |
|---|---|
| No exemptions listed for this property. | |
Town Information
- Tax Rate
- 0.018900
- Tax Due Dates
- 11/17/2025
04/15/2026 - Commitment Date
- 08/26/2025
- Certified Ratio
- 0.70
- Address
- 10 Crash Road
Livermore, ME 04253 - Phone
- 207-897-3207
- Fax
- 207-897-9581
- Tax Collector
- Amanda Tyler
- Treasurer
- Mary Castonguay
Tax Maps
For Download
- Livermore 2025 Cover
- Livermore 2025 Index
- Livermore 2025 Overall
- Livermore 2025 R01
- Livermore 2025 R02
- Livermore 2025 R03
- Livermore 2025 R04
- Livermore 2025 R05
- Livermore 2025 R06
- Livermore 2025 R07
- Livermore 2025 R08
- Livermore 2025 R09
- Livermore 2025 R10
- Livermore 2025 R11
- Livermore 2025 R12
- Livermore 2025 R13
- Livermore 2025 R14
- Livermore 2025 U01
- Livermore 2025 U02
- Livermore 2025 U03
- Livermore 2025 U04
- Livermore 2025 U05
- Livermore 2025 U06
- Livermore 2025 U07
- Livermore 2025 U08
- Livermore 2025 U09
- Livermore 2025 U10
- Livermore 2025 U11
- Livermore 2025 U12
- Livermore 2025 U13
- Livermore 2025 U14
- Livermore 2025 U15
- Livermore 2025 U16
- Livermore 2025 U17
- Livermore 2025 U18
- Livermore 2025 U19
- Livermore 2025 U20
- Livermore 2025 U21
- Livermore 2025 U22
- Livermore 2025 U23
- Livermore 2025 U24
- Livermore 2025 U25
- Livermore 2025 U26
- Livermore 2025 U27
- Livermore 2025 U28
