Mechanic Falls
73 BROOKLINE DRIVE
Property Information
- Site
- Map 002, Lot 007, Sub 003, Type 000
- Town
- Mechanic Falls
- Tax Year
- 2025
- Owner
- FULLILOVE, CRYSTAL S
- Last Committed Tax
- $4,533.47
- Land Value
- $74,735
- Building Value
- $229,525
- Total Real Value
- $304,260
- Exemption Value
- $0
- Net Taxable Real Value
- $304,260
Owner Information
- Owner #1
- FULLILOVE, CRYSTAL S
- Owner #2
- FULLILOVE, JASON
- Mailing Address
- 73 BROOKLINE DRIVE
MECHANIC FALLS, ME 04256 - Trio Account #
- 670
- Owner Since
- 05/24/2024
- Book
- 11585
- Page
- 259
- Purchase Price
- $420,000
Land Information
| Land Group: Type | Size | Value |
|---|---|---|
| Primary Lot: Additional 4 | 0.83 AC | $3,735 |
| Primary Lot: Table 4 | 1 AC | $45,000 |
| 1.83 Ac | $48,735 |
Site Improvement
Improvements made to the property such as a well, septic system or driveway.
| Description | SI Value |
|---|---|
| Site Improvement 3 | $26,000 |
| $26,000 |
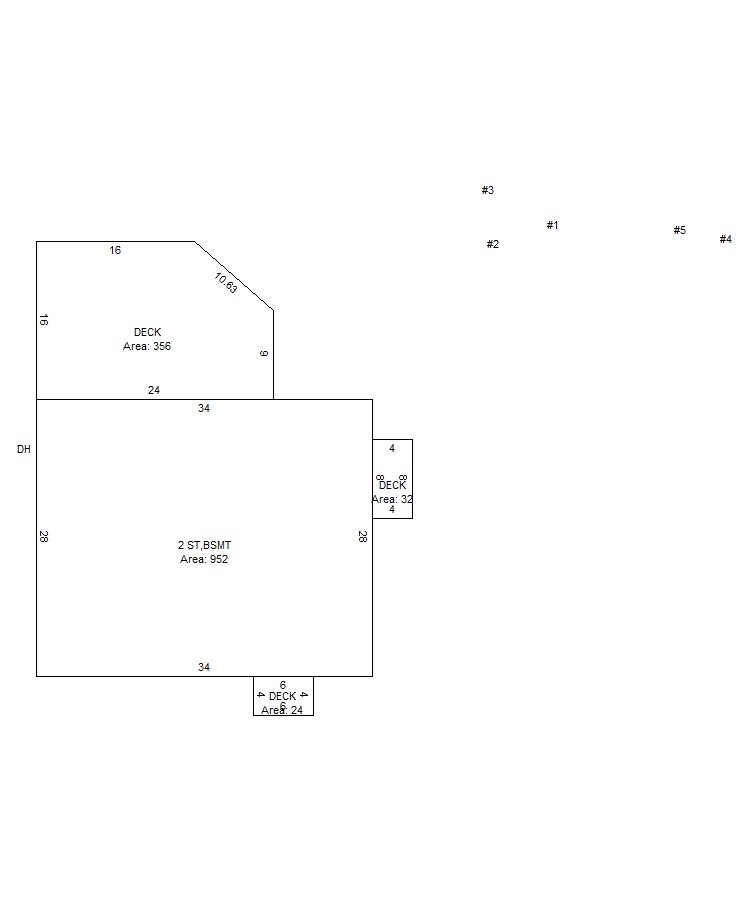
Building Data
| Building Type | Area | Grade | Cond | F.Obs. | E.Obs. | Value | Color | Year |
|---|---|---|---|---|---|---|---|---|
| 2-Story Frame | 952 | 4.00 | 95% | 100% | 100% | $212,161 | GRN | 2015 |
| Deck | 32 | 4.00 | 95% | 100% | 100% | $652 | ||
| Deck | 24 | 4.00 | 95% | 100% | 100% | $489 | ||
| Shed | 80 | 3.00 | 85% | 100% | 100% | $850 | ||
| Deck | 356 | 4.00 | 95% | 100% | 100% | $7,251 | 2019 | |
| Shed | 240 | 5.00 | 90% | 100% | 100% | $4,320 | ||
| Platform | 144 | 3.00 | 90% | 100% | 100% | $1,102 | ||
| Shed | 240 | 3.00 | 90% | 100% | 100% | $2,700 |
Visit History
| Date | Purpose | Result | Individual |
|---|---|---|---|
| 10/05/2022 | Equalization | Measure | Jeff Kendall |
| 04/03/2019 | Building Permit | Reprice | Dana Berube |
| 01/28/2019 | Building Permit | See 2019 | Julie Ward |
| 03/20/2015 | Building Permit | Measure | Denis Berube |
| 07/30/2014 | Building Permit | See 2015 | Denis Berube |
| 08/13/2012 | Equalization | Vacant | Dana Berube |
Exemptions
| Type | Value |
|---|---|
| No exemptions listed for this property. | |
Town Information
- Tax Rate
- 0.014900
- Tax Due Dates
- 10/15/2025
05/15/2026 - Commitment Date
- 08/11/2025
- Certified Ratio
- 1.00
- Address
- 108 Lewiston Street
Mechanic Falls, ME 04256 - Phone
- 207 345 2871
- Fax
- 207 345 9201
- Tax Collector
- Vic Hodgkins
- Treasurer
- Lisa Prevost
Tax Maps
For Download
- Mechanic Falls 2025 001
- Mechanic Falls 2025 002
- Mechanic Falls 2025 003
- Mechanic Falls 2025 004
- Mechanic Falls 2025 005
- Mechanic Falls 2025 006
- Mechanic Falls 2025 007
- Mechanic Falls 2025 008
- Mechanic Falls 2025 009
- Mechanic Falls 2025 010
- Mechanic Falls 2025 011
- Mechanic Falls 2025 012
- Mechanic Falls 2025 013
- Mechanic Falls 2025 014
- Mechanic Falls 2025 015
- Mechanic Falls 2025 016
- Mechanic Falls 2025 017
- Mechanic Falls 2025 018
- Mechanic Falls 2025 019
- Mechanic Falls 2025 020
- Mechanic Falls 2025 021
- Mechanic Falls 2025 022
- Mechanic Falls 2025 Cover
- Mechanic Falls 2025 Index
