Naples
71 ALDERBERRY BAY DRIVE
Property Information
- Site
- Map R01, Lot 002, Sub 008
- Town
- Naples
- Tax Year
- 2025
- Owner
- LAMBERT, JOHN
- Last Committed Tax
- $4,696.97
- Land Value
- $150,584
- Building Value
- $367,584
- Total Real Value
- $518,168
- Exemption Value
- $23,750
- Net Taxable Real Value
- $494,418
Owner Information
- Owner #1
- LAMBERT, JOHN
- Owner #2
- LAMBERT, MELANIE
- Mailing Address
- PO BOX 4056
NAPLES, ME 04055 - Trio Account #
- 3951
- Owner Since
- 05/21/2018
- Book
- 34851
- Page
- 304
- Purchase Price
- $95,000
Land Information
| Land Group: Type | Size | Value |
|---|---|---|
| Primary Lot: Additional 3 | 0.63 AC | $2,520 |
| Primary Lot: Table 3 | 1 AC | $40,000 |
| Primary Lot: Sebago Cove West | 217.02 LF | $78,064 |
| 1.63 Ac | $120,584 |
Site Improvement
Improvements made to the property such as a well, septic system or driveway.
| Description | SI Value |
|---|---|
| SI Grade 3 | $30,000 |
| $30,000 |
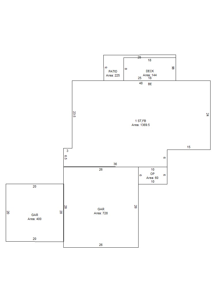
Building Data
| Building Type | Area | Grade | Cond | F.Obs. | E.Obs. | Value | Color | Year |
|---|---|---|---|---|---|---|---|---|
| 1-Story Frame | 1370 | 4.75 | 95% | 100% | 100% | $289,846 | 2019 | |
| Garage | 728 | 4.75 | 95% | 100% | 100% | $40,264 | ||
| Deck | 144 | 4.75 | 95% | 100% | 100% | $3,694 | ||
| Open Porch | 60 | 4.75 | 95% | 100% | 100% | $2,447 | ||
| Shed | 320 | 4.50 | 95% | 100% | 100% | $5,746 | ||
| Garage | 400 | 4.75 | 95% | 100% | 100% | $22,124 | ||
| Patio | 225 | 4.00 | 95% | 100% | 100% | $3,463 |
Visit History
| Date | Purpose | Result | Individual |
|---|---|---|---|
| 06/02/2025 | Callback | See 2026 | Greg Clifford |
| 04/02/2024 | Building Permit | See 2025 | Matthew Berube |
| 11/23/2021 | Equalization | Measure | Greg Clifford |
| 05/14/2020 | Building Permit | Reprice | Tristan Binette |
| 04/29/2019 | Building Permit | See 2020 | Noel M. |
| 09/09/2009 | Equalization | Reval review | Mike O'Donnell |
Exemptions
| Type | Value |
|---|---|
| Homestead | $23,750 |
Town Information
- Tax Rate
- 0.009500
- Tax Due Dates
- 10/20/2025
04/20/2026 - Commitment Date
- 08/25/2025
- Certified Ratio
- 0.95
- Address
- PO Box 1757
Naples, ME 04055 - Phone
- 207 693 6364
- Fax
- 207 693 3667
- Tax Collector
- Michelle Thibodeau
- Treasurer
- Randy Lessard
Tax Maps
For Download
- Naples 2025 R01
- Naples 2025 R02
- Naples 2025 R03
- Naples 2025 R04
- Naples 2025 R05
- Naples 2025 R06
- Naples 2025 R07
- Naples 2025 R08
- Naples 2025 R09
- Naples 2025 R10
- Naples 2025 R11
- Naples 2025 R12
- Naples 2025 U01
- Naples 2025 U02
- Naples 2025 U03
- Naples 2025 U04
- Naples 2025 U05
- Naples 2025 U06
- Naples 2025 U07
- Naples 2025 U08
- Naples 2025 U09
- Naples 2025 U10
- Naples 2025 U11
- Naples 2025 U12
- Naples 2025 U13
- Naples 2025 U14
- Naples 2025 U15
- Naples 2025 U16
- Naples 2025 U17
- Naples 2025 U18
- Naples 2025 U19
- Naples 2025 U20
- Naples 2025 U21
- Naples 2025 U22
- Naples 2025 U23
- Naples 2025 U24
- Naples 2025 U25
- Naples 2025 U26
- Naples 2025 U27
- Naples 2025 U28
- Naples 2025 U29
- Naples 2025 U29A
- Naples 2025 U30
- Naples 2025 U31
- Naples 2025 U32
- Naples 2025 U33
- Naples 2025 U34
- Naples 2025 U35
- Naples 2025 U36
- Naples 2025 U37
- Naples 2025 U38
- Naples 2025 U39
- Naples 2025 U40
- Naples 2025 U41
- Naples 2025 U42
- Naples 2025 U43
- Naples 2025 U44
- Naples 2025 U45
- Naples 2025 U46
- Naples 2025 U47
- Naples 2025 U48
- Naples 2025 U49
- Naples 2025 U50
- Naples 2025 U51
- Naples 2025 U52
- Naples Index Map
- Naples Cover Page
