New Gloucester
17 GABRIEL WOODS ROAD
Property Information
- Site
- Map 0001, Lot 0002, Sub 3C
- Town
- New Gloucester
- Tax Year
- 2025
- Owner
- DOUGHTY, ALBERT JOSEPH III
- Last Committed Tax
- $3,136.73
- Land Value
- $67,033
- Building Value
- $153,729
- Total Real Value
- $220,762
- Exemption Value
- $18,000
- Net Taxable Real Value
- $202,762
Owner Information
- Owner #1
- DOUGHTY, ALBERT JOSEPH III
- Mailing Address
- 17 GABRIEL WOODS RD
NEW GLOUCESTER, ME 04260 - Trio Account #
- 3267
- Owner Since
- 05/02/2013
- Book
- 30619
- Page
- 69
- Purchase Price
- $216,000
Land Information
| Land Group: Type | Size | Value |
|---|---|---|
| Primary Lot: Table 3 | 2 Ac | $43,000 |
| Primary Lot: Additional 3 | 0.01 Ac | $33 |
| 2.01 Ac | $43,033 |
Site Improvement
Improvements made to the property such as a well, septic system or driveway.
| Description | SI Value |
|---|---|
| Grade 3 | $24,000 |
| $24,000 |
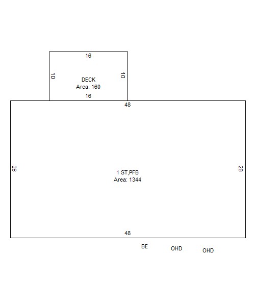
Building Data
| Building Type | Area | Grade | Cond | F.Obs. | E.Obs. | Value | Color | Year |
|---|---|---|---|---|---|---|---|---|
| 1-Story Frame | 1344 | 4.00 | 87% | 100% | 100% | $151,591 | GRN | 2006 |
| Deck | 160 | 4.00 | 87% | 100% | 100% | $2,138 | 2012 |
Visit History
| Date | Purpose | Result | Individual |
|---|---|---|---|
| 07/23/2025 | Callback | No Change | Nolan Johnson |
| 05/07/2024 | Building Permit | See 2025 | Greg Clifford |
| 09/03/2019 | Equalization | Measure & List | Dana Berube |
Exemptions
| Type | Value |
|---|---|
| Homestead | $18,000 |
Town Information
- Tax Rate
- 0.015470
- Tax Due Dates
- 10/02/2025
04/02/2026 - Commitment Date
- 08/27/2025
- Certified Ratio
- 0.72
- Address
- 385 Intervale Road
New Gloucester, ME 04260 - Phone
- 207 926 4126
- Tax Collector
- Sharlene Myers
- Treasurer
- Lori-Anne Wilson
Tax Maps
For Download
- New Gloucester 2025 COVER
- New Gloucester 2025 Index
- New Gloucester 2025-Map 0001
- New Gloucester 2025-Map 0002-1
- New Gloucester 2025-Map 0002-2
- New Gloucester 2025-Map 0002-3
- New Gloucester 2025-Map 0002-4
- New Gloucester 2025-Map 0002
- New Gloucester 2025-Map 0003-1
- New Gloucester 2025-Map 0003-2
- New Gloucester 2025-Map 0003-3
- New Gloucester 2025-Map 0003-4
- New Gloucester 2025-Map 0003
- New Gloucester 2025-Map 0004
- New Gloucester 2025-Map 0005
- New Gloucester 2025-Map 0006
- New Gloucester 2025-Map 0007-1
- New Gloucester 2025-Map 0007-2
- New Gloucester 2025-Map 0007-3
- New Gloucester 2025-Map 0007-4
- New Gloucester 2025-Map 0007
- New Gloucester 2025-Map 0008
- New Gloucester 2025-Map 0009
- New Gloucester 2025-Map 0010-1
- New Gloucester 2025-Map 0010-2
- New Gloucester 2025-Map 0010-3
- New Gloucester 2025-Map 0010-4
- New Gloucester 2025-Map 0010
- New Gloucester 2025-Map 0011
- New Gloucester 2025-Map 0012
- New Gloucester 2025-Map 0013
- New Gloucester 2025-Map 0014
- New Gloucester 2025-Map 0015
- New Gloucester 2025-Map 0016
- New Gloucester 2025-Map 0017
- New Gloucester 2025-Map 0018
- New Gloucester 2025-Map 0019
- New Gloucester 2025-Map 0020
- New Gloucester 2025-Map 0021
- New Gloucester 2025-Map 0022
- New Gloucester 2025-Map 0023
- New Gloucester 2025-Map 0024
- New Gloucester 2025-Map 0025
