Otisfield
546 POWHATAN ROAD
Property Information
- Site
- Map R01, Lot 002
- Town
- Otisfield2025 Committed
- Tax Year
- 2025
- Owner
- VAZQUEZ, ELTON
- Last Committed Tax
- $818.50
- Land Value
- $48,550
- Building Value
- $9,067
- Total Real Value
- $57,617
- Exemption Value
- $15,750
- Net Taxable Real Value
- $41,867
Owner Information
- Owner #1
- VAZQUEZ, ELTON
- Mailing Address
- 546 POWHATAN ROAD
OTISFIELD, ME 04270 - Trio Account #
- 1443
- Book
- 1277
- Page
- 89
- Purchase Price
- $0
Documents:
Land Information
| Land Group: Type | Size | Value |
|---|---|---|
| Primary Lot: Table 3 | 2 AC | $28,000 |
| Primary Lot: Additional 1 | 7 AC | $4,550 |
| 9.00 Ac | $32,550 |
Site Improvement
Improvements made to the property such as a well, septic system or driveway.
| Description | SI Value |
|---|---|
| Site Improvement 3 | $16,000 |
| $16,000 |
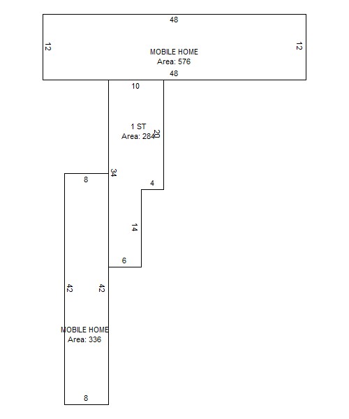
Building Data
| Building Type | Area | Grade | Cond | F.Obs. | E.Obs. | Value | Color | Year |
|---|---|---|---|---|---|---|---|---|
| Mo Ho 12-Foot | 576 | 1.00 | 60% | 60% | 100% | $3,110 | BRN | |
| 1-Story | 324 | 1.00 | 50% | 50% | 100% | $2,025 | ||
| Mo Ho 8-Foot | 336 | 3.00 | 100% | 100% | 100% | $2,000 | ||
| Mo Ho 10-Foot | 480 | 2.00 | 50% | 50% | 100% | $1,932 |
Visit History
| Date | Purpose | Result | Individual |
|---|---|---|---|
| 08/20/2009 | Building Permit | Measure | Dana Berube |
| 09/02/2004 | Equalization | Reval Review | Denis Berube |
Exemptions
| Type | Value |
|---|---|
| Homestead | $15,750 |
Town Information
- Tax Rate
- 0.019550
- Tax Due Dates
- 10/15/2025
04/15/2026 - Commitment Date
- 08/20/2025
- Certified Ratio
- 0.63
- Address
- 403 State Route 121
Otisfield, ME 04270 - Phone
- 207 539 2664
- Fax
- 207 539 2246
- Tax Collector
- Julie Ward
- Treasurer
- Julie Ward
Tax Maps
For Download
- Otisfield 2025 Cover
- Otisfield 2025 Index
- Otisfield 2025 Overall Zoning
- Otisfield 2025 R01
- Otisfield 2025 R02
- Otisfield 2025 R03
- Otisfield 2025 R04
- Otisfield 2025 R05
- Otisfield 2025 R06
- Otisfield 2025 R07
- Otisfield 2025 R08
- Otisfield 2025 R09
- Otisfield 2025 R10
- Otisfield 2025 R11
- Otisfield 2025 R12
- Otisfield 2025 R13
- Otisfield 2025 U01
- Otisfield 2025 U02
- Otisfield 2025 U03
- Otisfield 2025 U04
- Otisfield 2025 U05
- Otisfield 2025 U06
- Otisfield 2025 U07
- Otisfield 2025 U08
- Otisfield 2025 U09
- Otisfield 2025 U09A
- Otisfield 2025 U10
- Otisfield 2025 U11
- Otisfield 2025 U12
- Otisfield 2025 U13
- Otisfield 2025 U14
- Otisfield 2025 U15
- Otisfield 2025 U16
- Otisfield 2025 U17
- Otisfield 2025 U18
- Otisfield 2025 U19
- Otisfield 2025 U20
- Otisfield 2025 U21

