Sebago
22 PIT RD
Property Information
- Site
- Map 002, Lot 003, Sub B
- Town
- Sebago
- Tax Year
- 2025
- Owner
- SEBAGO, TOWN OF (PUBLIC WORKS)
- Last Committed Tax
- $0
- Land Value
- $0
- Building Value
- $233,033
- Total Real Value
- $233,033
- Exemption Value
- $233,033
- Net Taxable Real Value
- $0
Owner Information
- Owner #1
- SEBAGO, TOWN OF (PUBLIC WORKS)
- Mailing Address
- 406 BRIDGTON RD
SEBAGO, ME 04029 - Trio Account #
- 2319
- Purchase Price
- $0
Documents:
Land Information
| Land Group: Type | Size | Value |
|---|---|---|
| No land listed for this property. | ||
| 0.00 Ac | $0 | |
Site Improvement
Improvements made to the property such as a well, septic system or driveway.
| Description | SI Value |
|---|---|
| No site improvements listed for this property. | |
| $0 | |
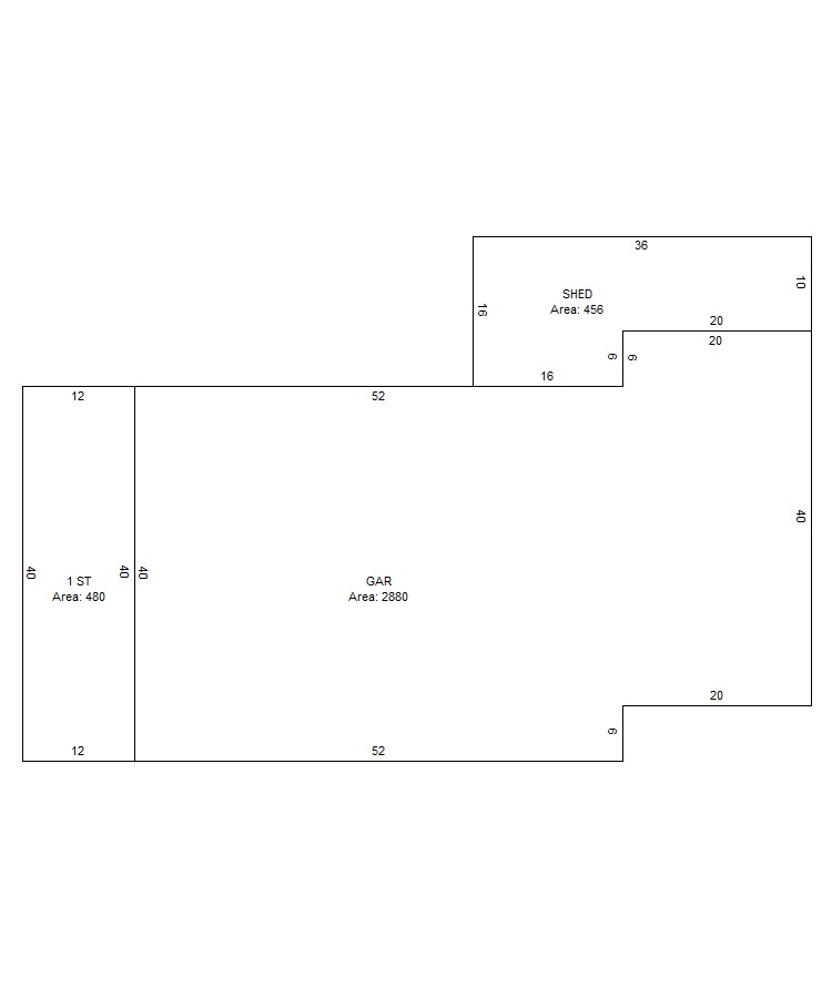
Building Data
| Building Type | Area | Grade | Cond | F.Obs. | E.Obs. | Value | Color | Year |
|---|---|---|---|---|---|---|---|---|
| Shed | 456 | 3.50 | 90% | 100% | 100% | $5,063 | ||
| Garage, Service | 2880 | 3.50 | 90% | 100% | 100% | $199,291 | ||
| Industrial Interior Office Space | 480 | 3.50 | 90% | 100% | 100% | $28,679 |
Visit History
| Date | Purpose | Result | Individual |
|---|---|---|---|
| 11/04/2020 | Equalization | Measure | Matthew Berube |
| 08/23/2011 | Building Permit | Measure | Carol Colby |
| 10/26/2010 | Building Permit | See 2011 | Carol Colby |
Exemptions
| Type | Value |
|---|---|
| Municipal/County Gov | $0 |
Town Information
- Tax Rate
- 0.014840
- Tax Due Dates
- 11/06/2025
05/07/2026 - Commitment Date
- 08/19/2025
- Certified Ratio
- 0.72
- Address
- 406 Bridgton Road
Sebago, ME 04029 - Phone
- 207-787-2457
- Tax Collector
- Letitia M.Genest
- Treasurer
- Harold Davis
Tax Maps
For Download
- Sebago 2025 001
- Sebago 2025 002
- Sebago 2025 003
- Sebago 2025 004
- Sebago 2025 005
- Sebago 2025 006
- Sebago 2025 007
- Sebago 2025 008
- Sebago 2025 009
- Sebago 2025 010
- Sebago 2025 011
- Sebago 2025 012
- Sebago 2025 013
- Sebago 2025 014
- Sebago 2025 015
- Sebago 2025 016
- Sebago 2025 017
- Sebago 2025 018
- Sebago 2025 019
- Sebago 2025 020
- Sebago 2025 021
- Sebago 2025 022
- Sebago 2025 023
- Sebago 2025 024
- Sebago 2025 025
- Sebago 2025 026
- Sebago 2025 027
- Sebago 2025 028
- Sebago 2025 029
- Sebago 2025 029A
- Sebago 2025 030
- Sebago 2025 031
- Sebago 2025 032
- Sebago 2025 033
- Sebago 2025 034
- Sebago 2025 035
- Sebago 2025 036
- Sebago 2025 037
- Sebago 2025 038
- Sebago 2025 039
- Sebago 2025 040
- Sebago 2025 041
- Sebago 2025 042
- Sebago 2025 043
- Sebago 2025 Cover
- Sebago 2025 Index wShades
