Shapleigh
299 Deering Ridge Rd
Property Information
- Site
- Map 001, Lot 004
- Town
- Shapleigh
- Tax Year
- 2025
- Owner
- WHITE, Norman Inc
- Last Committed Tax
- $15,262.35
- Interactive Map
- Click Here to View
- Land Value
- $196,154
- Building Value
- $960,085
- Total Real Value
- $1,156,239
- Exemption Value
- $0
- Net Taxable Real Value
- $1,156,239
Owner Information
- Owner #1
- WHITE, Norman Inc
- Owner #2
- WHITE, David Sandra L
- Mailing Address
- 50 Back Pasture Lane
SHAPLEIGH, ME 04076 - Trio Account #
- 2763
- Book
- 14008
- Page
- 289
- Purchase Price
- $0
Documents:
- 001-004
- 001-004 309 DRR Front
- 001-004 309 DRR Side
- 001-004 319 DRR Back
- 001-004 319 DRR
- 001-004 Aerial
- 001-004 Back of Ag
- 001-004 Front of complex
- 001-004 Log Home Entry
- 001-004 Log Home Front
- 001-004 Log Home Side
- 001-004 Log Home partial view
- 001-004 Log Home
- 001-004 Side of Complex
- 001-004 Side
- 001-004 Sketch 319 DRR
- 001-004 Sketch log home
- 001-004 Sketch
Land Information
| Land Group: Type | Size | Value |
|---|---|---|
| Primary Lot: Table 5 | 1.8 AC | $50,100 |
| Primary Lot: Additional 3 | 136.93 AC | $96,054 |
| 138.73 Ac | $146,154 |
Site Improvement
Improvements made to the property such as a well, septic system or driveway.
| Description | SI Value |
|---|---|
| Site Improvement 6 | $50,000 |
| $50,000 |
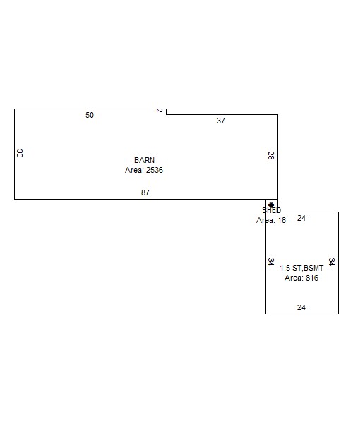
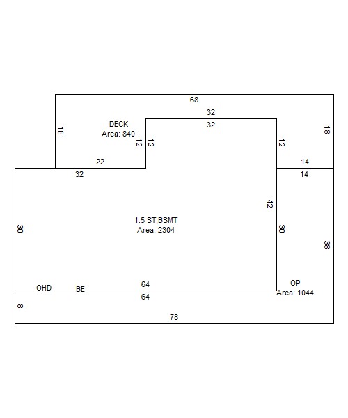
Building Data
| Building Type | Area | Grade | Cond | F.Obs. | E.Obs. | Value | Color | Year |
|---|---|---|---|---|---|---|---|---|
| 2-Story House | 784 | 3.25 | 85% | 100% | 100% | $115,409 | WHT | |
| 2-Story | 480 | 3.25 | 85% | 100% | 100% | $43,974 | ||
| Garage | 1350 | 3.00 | 80% | 80% | 100% | $19,584 | ||
| Barn | 5500 | 2.50 | 50% | 50% | 100% | $23,375 | ||
| Barn | 2860 | 3.20 | 60% | 60% | 100% | $25,338 | ||
| Shed | 1300 | 3.20 | 70% | 70% | 100% | $7,157 | ||
| Barn | 1168 | 2.00 | 65% | 65% | 100% | $6,909 | ||
| Barn | 1920 | 2.00 | 65% | 65% | 100% | $11,357 | ||
| Shed | 1360 | 3.20 | 70% | 70% | 100% | $7,487 | ||
| Barn | 870 | 3.00 | 55% | 55% | 100% | $5,264 | ||
| Barn | 4030 | 3.00 | 50% | 50% | 100% | $20,150 | ||
| Shed | 264 | 1.00 | 50% | 100% | 100% | $693 | ||
| Barn | 4900 | 2.00 | 40% | 40% | 100% | $10,976 | ||
| 1½-Story House | 816 | 2.75 | 80% | 100% | 100% | $80,281 | BLU | |
| Shed | 36 | 2.00 | 60% | 60% | 100% | $95 | ||
| Barn | 1740 | 2.50 | 55% | 55% | 100% | $8,948 | ||
| 1-Story House | 1216 | 3.00 | 85% | 100% | 100% | $95,854 | RED | |
| Enclosed Porch (EP) | 96 | 3.00 | 85% | 100% | 100% | $2,938 | ||
| 1-Story | 532 | 3.00 | 85% | 100% | 100% | $25,795 | ||
| 1½-Story House | 2304 | 5.00 | 85% | 100% | 100% | $372,341 | ||
| Open Porch (OP) | 1044 | 5.00 | 85% | 100% | 100% | $30,337 | ||
| Barn | 1560 | 3.00 | 95% | 100% | 100% | $29,640 | ||
| Deck | 840 | 5.00 | 95% | 100% | 100% | $16,183 |
Visit History
| Date | Purpose | Result | Individual |
|---|---|---|---|
| 12/10/2018 | Land Pricing | Split | Denis Berube |
| 10/18/2018 | Equalization | Measure | Noel M. |
| 06/01/2018 | Building Permit | Measure | Noel M. |
| 04/28/2011 | Callback | No Change | Dana Berube |
| 06/09/2010 | Callback | See 2011 | Dana Berube |
| 07/21/2009 | Callback | See 2010 | Dana Berube |
| 05/21/2008 | Callback | See 2009 | Roland Dumont |
| 05/15/2007 | Callback | See 2008 | Dana Berube |
| 07/21/2006 | Callback | See 2007 | Roland Dumont |
| 06/06/2005 | Building Permit | See 2006 | Roland Dumont |
| 08/31/2004 | Equalization | Equalization | Roland Dumont |
| Building Permit |
Exemptions
| Type | Value |
|---|---|
| No exemptions listed for this property. | |
Town Information
- Tax Rate
- 0.013200
- Tax Due Dates
- 10/03/2025
- Commitment Date
- 08/19/2025
- Certified Ratio
- 0.68
- Address
- 22 Back Road, PO Box 26
Shapleigh, ME 04076-0026 - Phone
- 207 636-2839
- Fax
- 207 636-3905
- Tax Collector
- Kayla Moulton
- Treasurer
- Michelle Rumney
Tax Maps
For Download
- Shapleigh 2025 Cover
- Shapleigh 2025 Index
- Shapleigh 2025 Tax Map 001
- Shapleigh 2025 Tax Map 002
- Shapleigh 2025 Tax Map 003
- Shapleigh 2025 Tax Map 004
- Shapleigh 2025 Tax Map 005
- Shapleigh 2025 Tax Map 006
- Shapleigh 2025 Tax Map 007
- Shapleigh 2025 Tax Map 008
- Shapleigh 2025 Tax Map 009
- Shapleigh 2025 Tax Map 010
- Shapleigh 2025 Tax Map 011
- Shapleigh 2025 Tax Map 012
- Shapleigh 2025 Tax Map 013
- Shapleigh 2025 Tax Map 014
- Shapleigh 2025 Tax Map 015
- Shapleigh 2025 Tax Map 016
- Shapleigh 2025 Tax Map 017
- Shapleigh 2025 Tax Map 018
- Shapleigh 2025 Tax Map 019
- Shapleigh 2025 Tax Map 020
- Shapleigh 2025 Tax Map 021
- Shapleigh 2025 Tax Map 022
- Shapleigh 2025 Tax Map 023
- Shapleigh 2025 Tax Map 024
- Shapleigh 2025 Tax Map 025
- Shapleigh 2025 Tax Map 026
- Shapleigh 2025 Tax Map 027
- Shapleigh 2025 Tax Map 028
- Shapleigh 2025 Tax Map 029
- Shapleigh 2025 Tax Map 030
- Shapleigh 2025 Tax Map 031
- Shapleigh 2025 Tax Map 032
- Shapleigh 2025 Tax Map 033
- Shapleigh 2025 Tax Map 034
- Shapleigh 2025 Tax Map 035
- Shapleigh 2025 Tax Map 036
- Shapleigh 2025 Tax Map 037
- Shapleigh 2025 Tax Map 038
- Shapleigh 2025 Tax Map 039
- Shapleigh 2025 Tax Map 040
- Shapleigh 2025 Tax Map 041
- Shapleigh 2025 Tax Map 042
- Shapleigh 2025 Tax Map 043
- Shapleigh 2025 Tax Map 044
- Shapleigh 2025 Tax Map 045



