Sumner
86 Spring Road
Property Information
- Site
- Map R01, Lot 004
- Town
- Sumner
- Tax Year
- 2025
- Owner
- Torrizo, Billie Jo
- Last Committed Tax
- $2,052.18
- Land Value
- $46,380
- Building Value
- $110,170
- Total Real Value
- $156,550
- Exemption Value
- $25,000
- Net Taxable Real Value
- $131,550
Owner Information
- Owner #1
- Torrizo, Billie Jo
- Mailing Address
- 86 Spring Road
Sumner, ME 04292 - Trio Account #
- 242
- Owner Since
- 06/30/2010
- Book
- 4604
- Page
- 6
- Purchase Price
- $119,000
Land Information
| Land Group: Type | Size | Value |
|---|---|---|
| Primary Lot: Table 2 | 1 AC | $24,500 |
| Primary Lot: Additional 2 | 2.4 AC | $5,880 |
| 3.40 Ac | $30,380 |
Site Improvement
Improvements made to the property such as a well, septic system or driveway.
| Description | SI Value |
|---|---|
| SI Grade 2 | $16,000 |
| $16,000 |
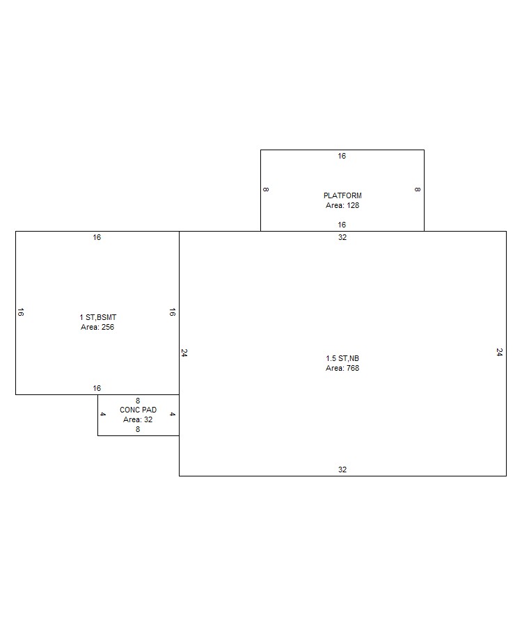
Building Data
| Building Type | Area | Grade | Cond | F.Obs. | E.Obs. | Value | Color | Year |
|---|---|---|---|---|---|---|---|---|
| 1½-Story Frame | 768 | 3.00 | 70% | 100% | 100% | $88,858 | BRN | |
| 1-Story | 256 | 3.00 | 70% | 100% | 100% | $16,611 | ||
| Shed | 338 | 3.00 | 70% | 100% | 100% | $3,312 | ||
| Shed | 120 | 3.00 | 70% | 100% | 100% | $1,176 | ||
| Concrete Pad | 32 | 3.00 | 70% | 100% | 100% | $213 |
Visit History
| Date | Purpose | Result | Individual |
|---|---|---|---|
| 09/06/2023 | Equalization | Measure | Jeff Kendall |
Exemptions
| Type | Value |
|---|---|
| Homestead | $25,000 |
Town Information
- Tax Rate
- 0.015600
- Tax Due Dates
- 11/21/2025
- Commitment Date
- 09/23/2025
- Certified Ratio
- 1.00
- Address
- 633 Main Street
Sumner, ME 04292 - Phone
- 207-388-2866
- Fax
- 207-388-2682
- Tax Collector
- Diane Campbell
- Treasurer
- Diane Campbell
Tax Maps
For Download
- Sumner 2025 Cover
- Sumner 2025 Index
- Sumner 2025 Lotting
- Sumner 2025 Overall
- Sumner 2025 R01
- Sumner 2025 R02
- Sumner 2025 R03
- Sumner 2025 R04
- Sumner 2025 R05
- Sumner 2025 R06
- Sumner 2025 R07
- Sumner 2025 R08
- Sumner 2025 R09
- Sumner 2025 R10
- Sumner 2025 R11
- Sumner 2025 R12
- Sumner 2025 R13
- Sumner 2025 R14
- Sumner 2025 R15
- Sumner 2025 R16
- Sumner 2025 R17
- Sumner 2025 R18
- Sumner 2025 R19
- Sumner 2025 R20
- Sumner 2025 R21
- Sumner 2025 R22
- Sumner 2025 R23
- Sumner 2025 R24
- Sumner 2025 U01
- Sumner 2025 U02
- Sumner 2025 U03
- Sumner 2025 U04
