Wales
311 EAST ROAD
Property Information
- Site
- Map R01, Lot 003
- Town
- Wales
- Tax Year
- 2025
- Owner
- VOYE, STEPHANIE
- Last Committed Tax
- $1,676.71
- Land Value
- $55,900
- Building Value
- $114,270
- Total Real Value
- $170,170
- Exemption Value
- $25,000
- Net Taxable Real Value
- $145,170
Owner Information
- Owner #1
- VOYE, STEPHANIE
- Mailing Address
- 311 EAST ROAD
WALES, ME 04280 - Trio Account #
- 4
- Owner Since
- 04/20/2016
- Book
- 11774
- Page
- 24
- Purchase Price
- $92,500
Documents:
Land Information
| Land Group: Type | Size | Value |
|---|---|---|
| Primary Lot: Rural Base | 0.23 AC | $29,900 |
| 0.23 Ac | $29,900 |
Site Improvement
Improvements made to the property such as a well, septic system or driveway.
| Description | SI Value |
|---|---|
| Grade 3 | $26,000 |
| $26,000 |
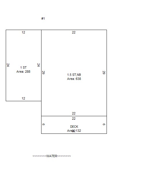
Building Data
| Building Type | Area | Grade | Cond | F.Obs. | E.Obs. | Value | Color | Year |
|---|---|---|---|---|---|---|---|---|
| 1½-Story Frame | 638 | 3.00 | 75% | 100% | 100% | $95,670 | GRY | 1820 |
| 1-Story | 288 | 3.00 | 75% | 100% | 100% | $16,568 | ||
| Deck | 132 | 3.00 | 75% | 100% | 100% | $1,832 | ||
| Shed | 0 | 3.50 | 80% | 90% | 100% | $200 |
Visit History
| Date | Purpose | Result | Individual |
|---|---|---|---|
| 02/05/2024 | Equalization | Measure | Jeff Kendall |
| 06/09/2008 | Equalization | Reval Review | Carol Colby |
| 11/26/2007 | Equalization | Measure | Roland Dumont |
Exemptions
| Type | Value |
|---|---|
| Homestead | $25,000 |
Town Information
- Tax Rate
- 0.011550
- Tax Due Dates
- 11/30/2025
04/30/2026 - Commitment Date
- 09/23/2025
- Certified Ratio
- 1.00
- Address
- 175 Centre Road
Wales, ME 04280 - Phone
- 207 375 8881
- Fax
- 207 375 8811
- Tax Collector
- Sharon Siegel
- Treasurer
- Sharon Siegel
