Wales
3 GOLDEN CREEK DRIVE
Property Information
- Site
- Map R01, Lot 007
- Town
- Wales
- Tax Year
- 2025
- Owner
- COTE, RODNEY W
- Last Committed Tax
- $3,791.11
- Land Value
- $103,000
- Building Value
- $250,235
- Total Real Value
- $353,235
- Exemption Value
- $25,000
- Net Taxable Real Value
- $328,235
Owner Information
- Owner #1
- COTE, RODNEY W
- Owner #2
- COTE, ROBIN J
- Mailing Address
- 3 GOLDEN CREEK DRIVE
WALES, ME 04280 - Trio Account #
- 9
- Book
- 3715
- Page
- 171
- Purchase Price
- $0
Land Information
| Land Group: Type | Size | Value |
|---|---|---|
| Primary Lot: Rural Base | 2 AC | $50,000 |
| Primary Lot: Additional | 12 AC | $27,000 |
| 14.00 Ac | $77,000 |
Site Improvement
Improvements made to the property such as a well, septic system or driveway.
| Description | SI Value |
|---|---|
| Grade 3 | $26,000 |
| $26,000 |
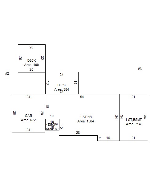
Building Data
| Building Type | Area | Grade | Cond | F.Obs. | E.Obs. | Value | Color | Year |
|---|---|---|---|---|---|---|---|---|
| 1-Story Frame | 1258 | 3.25 | 80% | 100% | 100% | $148,003 | ||
| 1-Story | 964 | 3.25 | 80% | 100% | 100% | $61,752 | ||
| Deck | 384 | 3.25 | 80% | 100% | 100% | $6,081 | ||
| Deck | 80 | 3.25 | 80% | 100% | 100% | $1,267 | ||
| Garage | 672 | 3.00 | 80% | 100% | 100% | $21,504 | ||
| Shed | 480 | 2.00 | 50% | 100% | 100% | $2,352 | ||
| Shed | 192 | 3.00 | 80% | 100% | 100% | $2,150 | ||
| Deck | 400 | 3.25 | 90% | 100% | 100% | $7,126 |
Visit History
| Date | Purpose | Result | Individual |
|---|---|---|---|
| 07/24/2025 | Building Permit | See 2026 | Dana Berube |
| 12/30/2024 | Mapping | Reprice | Paul Binette |
| 02/06/2024 | Equalization | Measure | Jeff Kendall |
| 07/21/2008 | Equalization | Reval Review | Paul Binette |
| 11/26/2007 | Equalization | Measure | Roland Dumont |
Exemptions
| Type | Value |
|---|---|
| Homestead | $25,000 |
Town Information
- Tax Rate
- 0.011550
- Tax Due Dates
- 11/30/2025
04/30/2026 - Commitment Date
- 09/23/2025
- Certified Ratio
- 1.00
- Address
- 175 Centre Road
Wales, ME 04280 - Phone
- 207 375 8881
- Fax
- 207 375 8811
- Tax Collector
- Sharon Siegel
- Treasurer
- Sharon Siegel
